Opportunité rare – Maison bourgeoise à la Robertsau, jardin, garage

1
2
3
4
5
6
7
8
9
10
11
12
13
14
15
1 2 3 4 5 6 7 8 9 10 11 12 13 14 15

Informations essentielles

Localisation67000 – Strasbourg RobertsauPrix FAI925 000 €
Surface250 m² Terrain339 m²
StationnementGarageExtérieursJardin
DPEFGESF

Au cœur de la prestigieuse Robertsau, dans la rue Saint-Fiacre, découvrez cette élégante maison des années 1930 offrant un énorme potentiel pour créer une demeure familiale de caractère allant jusqu’à 250 m² habitables, ou pour aménager plusieurs appartements selon votre projet.

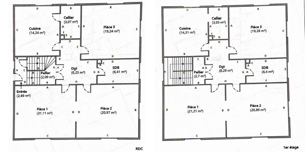
Édifiée en 1936 sur un terrain de 339 m², la propriété se compose actuellement de 2 appartements indépendants, situés au rez-de-chaussée et au 1er étage, représentant 194 m² habitables (97 m² par niveau).
Chaque étage accueille un appartement 3 pièces au charme authentique, avec sols en bois massif, cuisines indépendantes, fenêtres double vitrage et volets récents. Le chauffage est assuré par une chaudière au gaz.

Les combles, déjà dotés d’un magnifique plancher en bois massif, offrent la possibilité de créer un troisième appartement d’environ 60 m² ou d’imaginer un étage complet dédié à une suite parentale, à un espace de loisirs ou à des chambres supplémentaires.

Une cave semi-enterrée complète l’ensemble, accessible également par le jardin, idéale pour aménager une salle de sport, un sauna, une cave à vin ou de vastes espaces de rangement.

Un garage vient parfaire les prestations.


Pourquoi cette maison est unique ?

  • Quartier recherché de Strasbourg, calme, résidentiel et parfaitement connecté.
  • Potentiel exceptionnel pour créer une maison bourgeoise luxueuse, avec volumes, hauteur sous plafond et cachet de l’ancien.
  • Possibilité d’aménager plusieurs logements (investisseurs, projet familial multi-générations…).
  • Sol en bois massif sur tous les niveaux, y compris dans les combles.
  • Maison saine, à rénover selon vos envies pour en faire un bien d’exception.

Localisation idéale : tout à pied

Bus 30 / 72 / C6 / N1 à 50 m

Supermarché Match à 5 min à pied

Tram E à 10 min à pied

École Européenne et piscine de la Robertsau à 15 min à pied

Institutions européennes à 20 min à pied

Prix FAI : 925 000 € (2,78% d’honoraires d’agence inclus, soit 25 000 € à la charge de l’acquéreur)

Classe énergie : F (387 kWh/m²/an), GES : B (80 kg CO2/m/an). DPE réalisé le 23/03/2025.

Montant estimé des dépenses annuelles d’énergie pour un usage standard : de 6220 € à 8460 € par an. Prix moyens des énergies indexés sur les années 2021, 2022 et 2023 (abonnements compris).

Les informations sur les risques auxquels ce bien est exposé sont disponibles sur le site Géorisques.

Quelle que soit votre question, contactez-nous 7j/7 de 9:00 à 21:00
06 03 72 59 46
contact@oris-immo-deco.fr


Nous intervenons dans tout le département Bas-Rhin pour vos projets d’achat ou de vente immobilière et dans la France entière pour vos projets de décoration.
Nous parlons français, anglais et russe.