Appartement F1 avec terrasse et coin nuit séparé, au cœur de la Presqu’île Malraux à Strasbourg

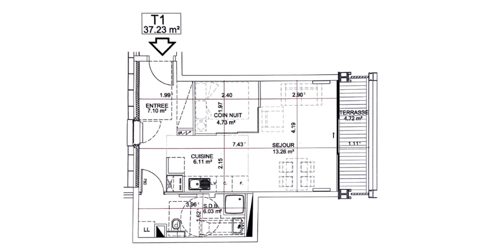
F1 de 37 m²v
Avec un coin nuit
Pièce principale lumineuse
Cuisine équipée ouverte sur le salon
Terrasse de 4,7 m²
Plan de l'appartement
Cadre agréable
Dans un quartier très recherché
F1 de 37 m²v Avec un coin nuit Pièce principale lumineuse Cuisine équipée ouverte sur le salon Terrasse de 4,7 m² Plan de l'appartement Cadre agréable Dans un quartier très recherché

Informations essentielles

Localisation67000 – StrasbourgPrix FAI210 000 €
Surface37 m²Etage5ème avec ascenseur
DPECGESC

Dans un quartier emblématique mêlant modernité, culture et dynamisme, découvrez ce charmant F1 de 37 m², situé au 5e étage avec ascenseur d’une résidence récente de standing sur la Presqu’île Malraux.

Composition de l’appartement :

  • Entrée avec emplacement pour placard intégré
  • Pièce de vie lumineuse avec cuisine équipée ouverte
  • Terrasse de 4,7 m², orientée Est, idéale pour vos petits-déjeuners ou un coin lecture abrité
  • Salle d’eau avec douche à l’italienne, meuble vasque et WC
  • Espace nuit en alcôve, délimité de la pièce principale, pour plus d’intimité

Les + de l’appartement :

  • Très bon état général
  • Grande baie vitrée pour une belle luminosité
  • Résidence sécurisée avec ascenseur
  • Local vélos
  • Emplacement exceptionnel : cinémas, restaurants, médiathèque Malraux et tram à deux pas

Idéal pour primo-accédant, cet appartement est un véritable cocon urbain où vous pourrez profiter du calme d’un logement bien isolé, tout en étant à quelques pas seulement des plus beaux lieux de vie et de culture de Strasbourg. Espaces de coworking, supermarché Leclerc, boutiques du centre commercial Rivetoile sont à proximité immédiate.  Imaginez-vous, le matin, prenant votre café sur la terrasse, ou le soir, sortant au cinéma ou au restaurant sans jamais prendre la voiture.

Prix FAI : 210 000 € (2,94% d’honoraires d’agence inclus, soit 6 000 € à la charge de l’acquéreur)

L’appartement fait partie d’une copropriété de 68 lots principaux. Charges annuelles prévisionnelles (chauffage et eau chaude incus) : 1520 €. Aucune procédure en cours.

La taxe foncière s’élevait en 2024 à 714 € par an.

Classe énergie : C (106 kWh/m²/an), GES : C (20 kg CO2/m/an). DPE réalisé le 25/01/2023. Montant estimé des dépenses annuelles d’énergie pour un usage standard : de 240 € à 380 € par an. Prix moyens des énergies indexés au 1er janvier 2021 (abonnements compris).

Les informations sur les risques auxquels ce bien est exposé sont disponibles sur le site Géorisques : www.georisques.gouv.fr

Quelle que soit votre question, contactez-nous 7j/7 de 9:00 à 21:00
06 03 72 59 46
contact@oris-immo-deco.fr


Nous intervenons dans tout le département Bas-Rhin pour vos projets d’achat ou de vente immobilière et dans la France entière pour vos projets de décoration.
Nous parlons français, anglais et russe.